62520 Le Touquet-Paris-Plage Centre d'affaires

06 12 50 54 59 Florence DESMIDT-DUFOUR

Dans un cadre exceptionnel, magnifique villa de 230 m² avec 5ch, 3sdb garage 2v bâtie sur 1501 m²


< Retour

Partager sur

gallery loader

Maison 186 m² - 6 Pièces
Le Touquet-Paris-Plage 1 595 000 €


Description de l'offre Ref 290


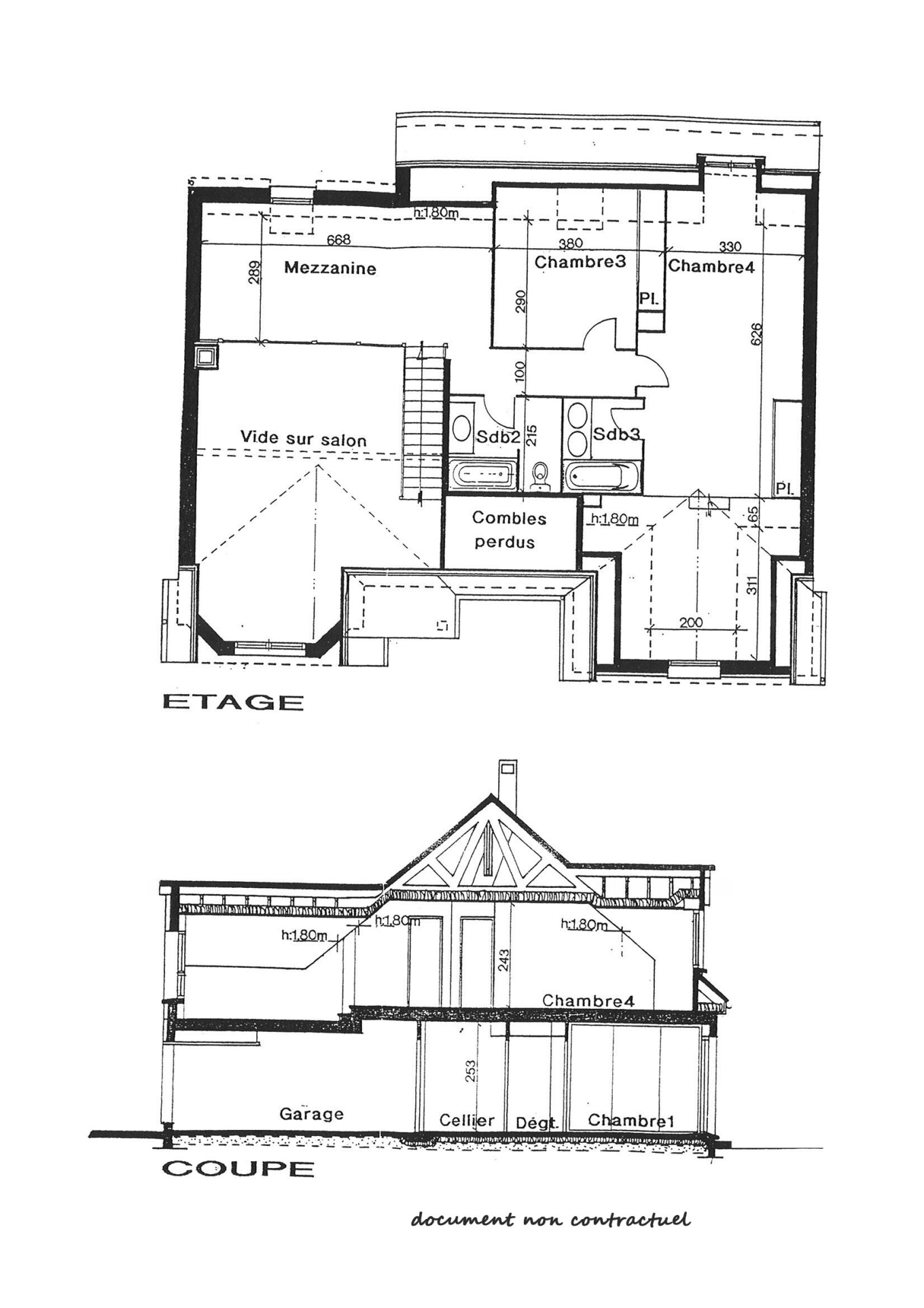
Dans un domaine privé et  sécurisé situé à 600 m de la plage, magnifique villa de 230 m² bâtie sur un beau terrain de 1501 m² prolongé par les dunes protégées comprenant un vaste séjour en cathédrale très lumineux  de 54 m²  avec cheminée de bois, une cuisine spacieuse équipée avec coin repas et donnant sur la vaste terrasse et jardin, une suite parentale avec salle de bains (baignoire et douche) et  wc, une deuxième chambre, un wc séparé, une buanderie menant au garage pour deux voitures et au parking pour plusieurs voitures. A l'étage : une vaste mezzanine pouvant servir de coin TV bureau ou 6ème chambre, trois belles chambres, deux salles de bains, un wc, un grenier. Les + de cette villa :  accès au domaine par un portail avec digicode,  domaine bien habité à l'année où règne une qualité de vie le calme et la beauté du paysage, plan idéal et confortable gràce à ses deux chambres et salle de bains en rez-de-chaussée, le plus bel emplacement du Domaine de Whitley idéal pour vivre à l'année ou en secondaire, cadre préservé, très bon DPE avec chauffage électrique, pistes cyclables  et navettes gratuites au pied de la villa pour rejoindre la rue Saint Jean à seulement 2 kms....

Diagnostics de performance énergétique


DPE
DPE
DPE ANCIENNE VERSION

Descriptif du bien


Code postal 62520


Surface habitable (m²) 186 m²


surface terrain 1 501 m²


Surface loi Carrez (m²) 186 m²


Nombre de chambre(s) 5


Nombre de pièces 6


Nombre de niveaux 2


Vue panoramique sur les dunes


Nb de salle de bains 1


Nb de salle d'eau 3


Mode de chauffage Electrique


Type de chauffage Panneaux rayonnant


Format de chauffage Individuel


Terrasse OUI


Nombre de garage 1


Exposition SUD-OUEST


Année de construction 2000


Terrain arboré OUI


Prix de vente honoraires TTC inclus 1 595 000 €


Cette annonce vous intéresse ?


* Champs obligatoires

* : Les informations recueillies sur ce formulaire sont enregistrées dans un fichier informatisé par La Boite Immo agissant comme Sous-traitant du traitement pour la gestion de la clientèle/prospects de l'Agence / du Réseau qui reste Responsable du Traitement de vos Données personnelles. La base légale du traitement repose sur l'intérêt légitime de l'Agence / du Réseau. Elles sont conservées jusqu'à demande de suppression et sont destinées à l'Agence / au Réseau. Conformément à la loi « informatique et libertés », vous disposez des droits d’accès, de rectification, d’effacement, d’opposition, de limitation et de portabilité de vos données. Vous pouvez retirer votre consentement à tout moment en contactant directement l’Agence / Le Réseau. Consultez le site https://cnil.fr/fr pour plus d’informations sur vos droits. Si vous estimez, après avoir contacté l'Agence / le Réseau, que vos droits « Informatique et Libertés » ne sont pas respectés, vous pouvez adresser une réclamation à la CNIL. Nous vous informons de l’existence de la liste d'opposition au démarchage téléphonique « Bloctel », sur laquelle vous pouvez vous inscrire ici : https://www.bloctel.gouv.fr Dans le cadre de la protection des Données personnelles, nous vous invitons à ne pas inscrire de Données sensibles dans le champ de saisie libre.
Ce site est protégé par reCAPTCHA, les Politiques de Confidentialité et les Conditions d'Utilisation de Google s'appliquent.

autres annonces immobilières correspondant à votre recherche

Les biens similaires pour : Vente Maison Le Touquet-Paris-Plage (62520)